Hintergrundbild_Patschaer.png

Projektpläne

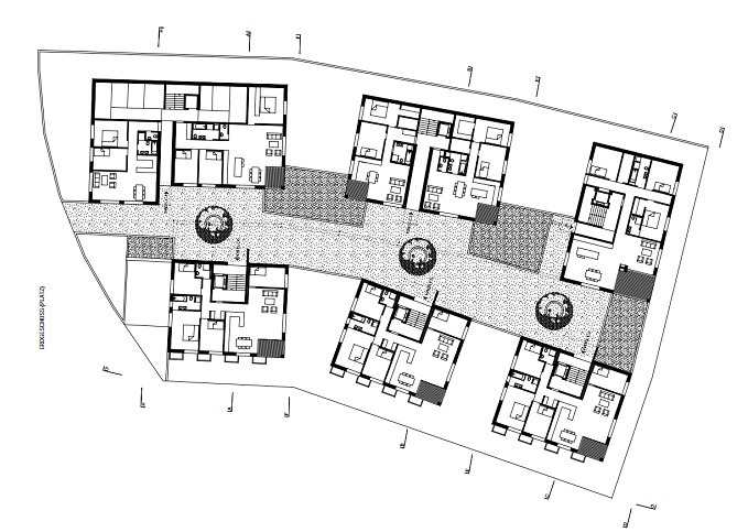
Situationsplan Hof (Variantenstudie)

Hof_25_2_2011.jpg
Ziel der Arealplanung war es, eine Quartiersituation zu schaffen, die an die Strassenverzweigung Steigstrasse, St. Luzi und Plutt anschliesst und so eine Anknüpfung an das bestehende Dorf findet. Die Hofbildung im unteren Arealplanbereich stellt im Weiteren eine bewusste Anlehnung an die bestehende Dorfkernstruktur mit ihren engen Gassen und kräftigem Bauvolumen dar.  Ein weiteres typisches Element sind die Gassen- oder Wingertmauern, die ebenfalls in den Arealplan übernommen wurden und die Hofsituation unterstützen.

Tiefgarage und Keller (Variantenstudie)

Tiefgarage_V4.jpg
Der Arealplan sieht oberirdisch nur Fusswege vor. Dem Arealplan folgend wurden alle Parkplätze in der Tiefgarage platziert.
Unmittelbar nach der Einfahrtrampe zu der Tiefgarage sind links die Besucherparkplätze (offener Zugang).
Der restliche Bereich der Tiefgarage ist nicht öffentlich und mit einem Tor abgetrennt. Alle Hauszugänge liegen im nicht öffentlichen Bereich.

Das 1. UG deckt vor allem die Pflichtparkplätze der Häuser E und F ab. Im Weiteren sind auf dieser Ebene auch Velo- und Kinderwagenabstellplätze etc. für die ganze Überbauung und eine Autowaschstation vorgesehen.

Die Parkplätze der Ebenen U2 und U3 sind für die Häuser A, B, C, D vorgesehen und sind über eine interne Rampe verbunden. Insgesamt sind rund 30 Reserveparkplätze vorgesehen.

PDF-Plan Tiefgarage


Pläne Haus A, B, C, E (Projektpläne)